Three bed terraced house in need of some general modernisation.

3 bedrooms
1 public room
1 bathroom

Property

 

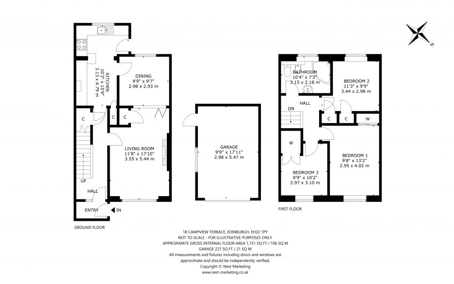
This three-bedroom terraced property offers generous living and storage space, making it an excellent choice for a family home. Presenting a fantastic opportunity for buyers to modernise and style to their own taste, the property combines well-proportioned accommodation with superb potential throughout. In addition, a partially floored attic provides further useful storage and scope for future development (subject to consents).

 

The ground floor features a bright living room,  dining room, and a kitchen with access to the rear garden. Upstairs, there are three well-proportioned double bedrooms, all benefiting from built in storage space and a family bathroom.

 

Externally, the property benefits from its own private garden, a separate garage, and ample on-street parking.

 

 

Central Heating and Double Glazing

Gas central heating operated by gas boiler is complemented by double glazing.

 

Gardens and Driveway

The property benefits from private front and back garden space and a separate garage.

 

Location

Danderhall is a popular residential village in Midlothian, just a few miles from Edinburgh city centre. Well served by local amenities including a modern Community Hub with library and café, a primary school, medical centre and convenience shopping, it offers everything needed for day-to-day living. Excellent transport links provide quick and easy access into Edinburgh and beyond via regular bus services and the City Bypass. With a welcoming community feel, nearby green spaces and a convenient location, Danderhall is an ideal base for families and commuters alike.

 

 

Extras

Carpets, blinds and the cooker and washing machine are included in the sale price.

 

Valuation

The property has been valued by surveyors at £200,000 and the home report is available via the ESPC website.

 

Council Tax and EPC

The property lies in Council Tax C and has an EPC C rating. 

 

Viewing

To view telephone agents on 0131 229 3399.

Key features

  • Three bed terraced house in need of some general modernisation
  • Living room leading to dining room
  • Separate fitted kitchen
  • Family bathroom
  • Gas central heating and double glazing
  • Private garden space and separate recently refurbished garage
  • EPC C
Click to view dynamic map